Unit 3, Jigginstown Commercial Centre, Newbridge Road, Naas, Co. Kildare. W91 A2XE


























Unit 3, Jigginstown Commercial Centre, Newbridge Road, Naas, Co. Kildare. W91 A2XE
Type
Office
Status
Let Agreed
BER
BER No: 800960163
EPI: 275.92
Brochure
Description
Naas is the largest urban centre in County Kildare and is also the capital Town of the county. Located in the greater Dublin Region the town has witnessed a dramatic increase in population over the past number of years and serves as an important commercial and services centre for the county. The past number of years have seen major infrastructural improvements in the town with road and transport links improving immensely.
The subject property is situated in the Jigginstown Commercial Centre, off the Newbridge Road at its junction with the Naas ring road. This busy commercial centre is well located, approximately 2 km from Naas Town centre and the M7 Motorway at junction 10. The property is also approximately 2 km from the M7 Business Park and 5 km from Momentum Logistics Park. Neighbouring occupiers include Europcar Naas, SMC Cars, Aldi and N.F.E.T.C.
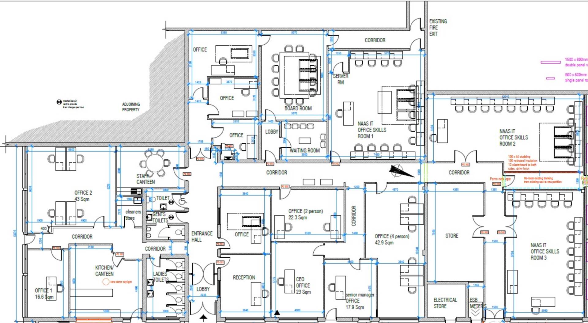
The property comprises a ground floor office complex extending to approximately 790 sqm (8,500 sq. ft.) and laid out in a series of offices, boardrooms, training rooms and associated facilities.
The office specifications include suspended ceilings, recessed fluorescent lighting, carpeted floor covering, fire & intruder alarms and cable trunking with IT & phone points. There are surface car parking spaces available with the office.
Features
- Large Ground Floor Office Complex
- Central Location
- Surface Car-Parking
- Extends to 790 sqm (8,500 sqft)
Newbridge Road Neighbourhood Guide
Explore prices, growth, people and lifestyle in Newbridge Road.